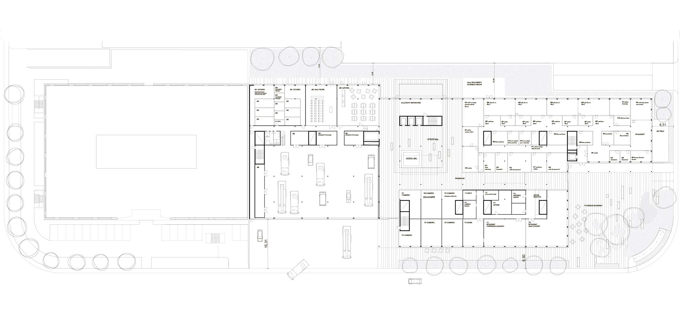
Le concours concerne l’utilisation d’un terrain situé dans la zone industrielle et artisanale de Plan-les-Ouates dit «Piscine», creusé et abandonné pendant des années. Le programme du concours prévoit un rez-de-chaussée avec plusieurs services publics tels des magasins, un restaurant, une crèche et une station de pompiers. Les étages sont occupés par des grands laboratoires de recherche avec des compartimentages pour start-ups. L’organisation des circulations, de la structure et des fluides doit permettre une grande flexibilité dans le temps. Trois étages de parking, avec 700 places, complètent le projet. Le projet organise les éléments du programme autour de noyaux centraux qui amènent la lumière à l’intérieur du bâtiment et organisent les circulations et les relations spatiales. Le décalage des volumes permet de créer un espace public dans l’angle de la parcelle, qui s’offre au quartier comme lieu de repos et de rencontre.





