Le bâtiment de la coopérative Polygones fonctionne comme «un solitaire» dans le quartier, il est isolé et parallèle au mail. Situé à l’entrée du site, au bout de l’esplanade, le bâtiment marque un point spécifique du quartier des Vergers et génère des relations entre le haut et le bas. Le projet d’aménagement que nous proposons consiste à offrir une diversité d’espaces publics destinés à l’usage des habitants du quartier: la terrasse couverte en lien avec l’espace culturel et la salle polyvalente ainsi que le jardin légèrement en contrebas qui permet de gérer la relation spatiale avec la rue et de créer un espace vert de qualité.
La morphologie du bâtiment en demi-niveaux induit la forme et le mouvement de la façade. Les balcons filants et continus entre étages expriment cette volonté de fluidité.
Ce mouvement continu contient l’espace d’habitat et connecte les habitants au mail, au chemin bas, au jardin en toiture. Les balcons offrent de vastes espaces extérieurs qui permettent d’habiter l’extérieur et d’être abrité. L’espace des balcons est aussi un passage entre appartements et plus que cela, un symbole de communauté.
Le projet reformule les limites du domaine privé et collectif.
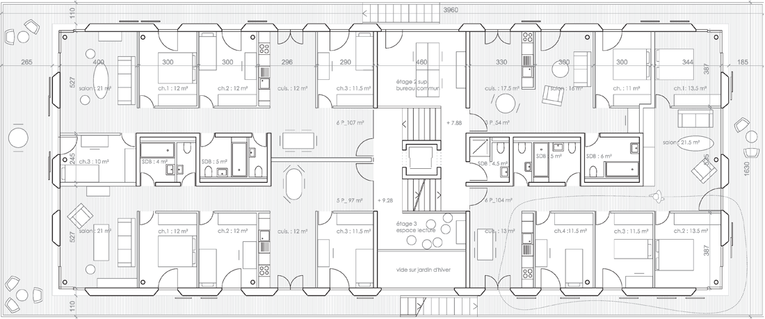
Il s’agit de conserver la privacité des habitants tout en favorisant les connections entre eux. Les degrés de privacité sont déclinés dans les appartements, mais aussi recherché dans les espaces communs. Au rez de chaussée les espaces intérieurs se prolongent vers des espaces extérieurs. Le noyau de l’immeuble est constitué de lieux de rencontre, d’espaces partagés en lien avec les escaliers. C’est une partie intégrante du programme qui participe largement au confort de vie des habitants et à la qualité de leur vie sociale.
Le jardin en toiture est conçu comme un appartement partagé. Il propose une cuisine commune aménagée, une terrasse accessible avec solarium et potager.






