amosarchitectes

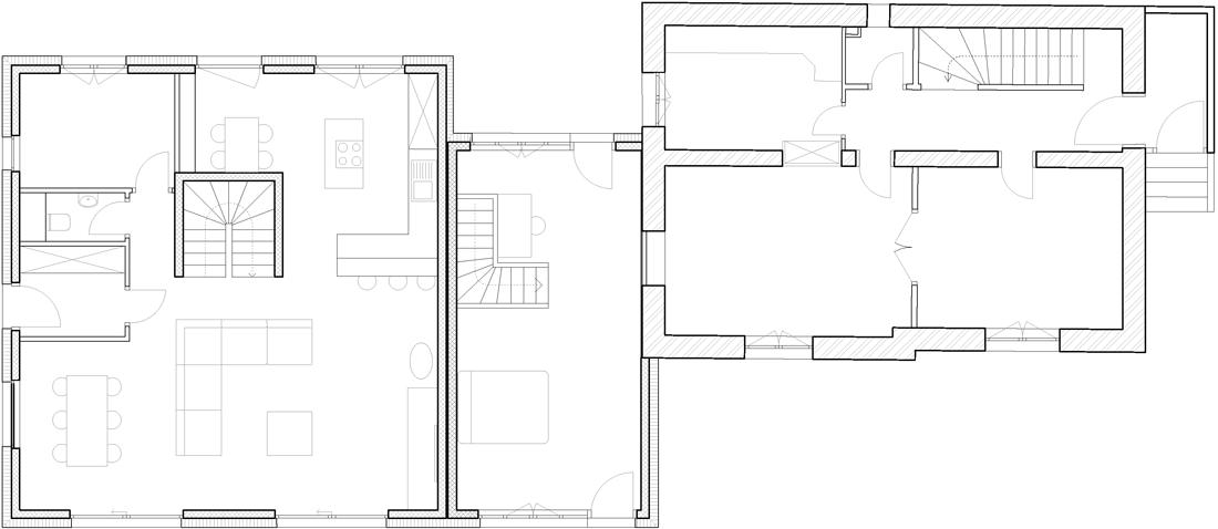
Situé aux portes de Genève, cet ensemble de trois maisons est un projet multifamilial accueillant trois générations. La maison initiale construite en 1920 a été complétée par extension indépendante sur deux niveaux à laquelle est accolée une nouvelle villa de trois niveaux.

Les volumes sont composés de formes simples et permettent un aménagement optimal. Les espaces de vie sont orientés au sud et profitent des très bonnes conditions d’ensoleillement du terrain. Les chambres s’ouvrent généreusement vers un espace calme et végétal.

Pour compléter l’intervention, la maison ancienne a été rénovée avec la création d’une ouverture entre la cuisine et la salle à manger et l’aménagement d’une nouvelle salle de bain.